Дома под ключ в Новороссийске
Отзывы из Яндекс Карт
4.9
118 отзывов
Дополнительные услуги 88%
2 154 оценок
Комплектации 89%
1 535 оценок
Планировки 90%
2 484 оценок
Проекты 93%
2 231 оценок
С
Алан Ф.26.02.2026 г.
Короче, выбрал БрусДома из-за адекватных цен и готовых проектов. Заказал баню 4х5 с печкой и купелью. Сделали за месяц, привезли, собрали. Парилка классная, только дымоход немного косо приварили — сам исправил, мелочи.
С
Руслана Демьянова27.01.2026 г.
Дом 8х10 для круглогодичного проживания. Утеплили хорошо, зимой было комфортно. Но вот лестницу на второй свет сделали слишком крутую, надо было сразу обращать внимание на чертеже.
С
Зинаида Королёва23.06.2025 г.
Огромное спасибо бригаде Владимира за строительство нашей бани! Ребята работали на совесть, видна была искренняя заинтересованность в результате. Они дали множество ценных советов по уходу за древесиной и эксплуатации, за что отдельное спасибо. Теперь каждые выходные – это маленький праздник.
Отзывы из Google Карт
4.8
71 отзывов
Дополнительные услуги 88%
2 154 оценок
Комплектации 89%
1 535 оценок
Планировки 90%
2 484 оценок
Проекты 93%
2 231 оценок
С
Семен С.08.04.2026 г.
Взял проект дома с гаражом 8х12, в итоге получилось просторно. Единственное — не учли, что я хотел второй вход с террасы, пришлось договариваться на месте, переделали без доплат, но нервов потратил.
С
Вова Я.17.03.2026 г.
Советую всем внимательно читать договор с этой компанией. Я заказывал дом 8х15 с террасой, в договоре было прописано «устройство кровли из металлочерепицы», а доборные элементы и снегозадержатели оказались платными. Доплатил 15 тысяч.
С
Лев Чёрный21.01.2025 г.
Рад, что доверил строительство каркасного дома для постоянного проживания компании «Брус дома»! Дом получился очень тёплым, что особенно важно в нашем климате, и очень тихим — звукоизоляция на высоте. Спасибо за качественные материалы и профессиональный монтаж.
Отзывы из 2гис
4.9
31 отзывов
Дополнительные услуги 88%
2 154 оценок
Комплектации 89%
1 535 оценок
Планировки 90%
2 484 оценок
Проекты 93%
2 231 оценок
С
Ренат Ф.11.04.2025 г.
Решил построить баню и остановил свой выбор на этой компании, и ни капли не пожалел — бригада работала слаженно и аккуратно, материал отличный, а запах дерева внутри просто непередаваемый.


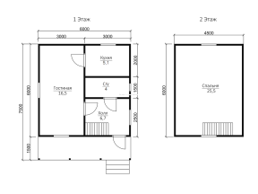
Проект №18 Дом с террасой 7,5х6

каркас из строганой доски
Создайте свой план для этого проекта
и отправьте его нам на расчет в один клик.
Каркасный дом (150 мм) 6х7,5 Толщина утепления 150 мм 2073800 Заказать
Каркасный дом (200 мм) 6х7,5 Толщина утепления 200 мм 2233800 Заказать

Доставка включена в стоимость дома!

Для того, чтобы подстроить под себя уже готовый проект и получить личную планировку, пользуйтесь планировщиком.

С помощью планировщика вы имеете возможность сделать подходящие эскизы, планы, чертежи, схемы дома с эркером, мансардой, с несколькими спальнями. Вы сможете получить персональный проект с планировкой, который стопроцентно отвечает вашим требованиям.

При заказе строительства дома вы сможете подобрать тип кровли. Вашу крышу можно сделать четырехскатной, двускатной и вальмовой. Двухскатную считают наиболее востребованной в малометражных домах.

Популярные на данный момент размеры: мини - до 50 м2 (в основном, 1-этажные); компактные - от 70м2 до 100 квадратов (обычно 2-этажные); большие - от 150 кв. М и больше.

Предлагаем дуплексы - каркасные дома с 2-мя входами, рассчитанные на проживание двух семей. Дома строятся сразу для двух хозяев и разделены на две части, для обоих половин - свой отдельный вход.


Наши работы

Перейти в галерею


Комплектация

Площадь застройки: 45 м2
Длина: 7.5 м
Ширина: 6 м
Общая площадь: 58.82 м2
Исполнение Под ключ (с отделкой)
Фундамент Свайно-винтовой или ж/б сваи (рассчитываются отдельно).
Гидроизоляция фундамента Рубероид в два слоя.
Основание (обвязка) Из обрезного бруса 150х150 мм. 150х200 мм. согласно выбранной толщине утепления. Торцевая доска строганая 45х145/45х195+/-5 мм. согласно выбранной толщине утепления. Обработка антисептиком.
Цокольное перекрытие Строганая доска камерной сушки 45х145/45х195+/-5 мм. с шагом 590 мм. Обработка антисептиком.
Пол черновой Обрезная доска камерной сушки 20х100 мм.
Влаго-ветрозащита чернового пола Мембрана Ондутис А100.
Внешние стены Стойки каркаса из строганой доски камерной сушки 45х145/45х195+/-5 мм. с шагом 590 мм. Верхняя двойная и нижняя обвязки из строганой доски камерной сушки 45х145/45х195+/-5 мм. Разгрузочный ригель из строганой доски 45х145+/-5 мм. Укосины из строганой доски 20х95 мм.
Перегородки Стойки каркаса из строганой доски камерной сушки 45х95+/-5 мм. с шагом 590 мм. Верхняя двойная и нижняя обвязки из строганой доски 45х95+/-5 мм. Разгрузочный ригель из строганой доски камерной сушки 45х145+/-5 мм. Укосины из строганой доски камерной сушки 20х95 мм.
Сборка каркаса На гвозди.
Высота от пола до потолка Дом одноэтажный: 2,5 м. Дом с мансардой: 1-ый этаж- 2,5 м.
2-ой этаж (мансарда)- 2,3 м.
Дом в полтора и два этажа:
1-ый этаж 2,5 м.
2-ой этаж 2,4 м. в полутораэтажном доме
2,5 м. в двухэтажном доме.
Внешняя отделка стен Имитация бруса камерной сушки, сорт АВ, толщиной 17 мм. Монтаж через строганый брусок камерной сушки 45х45+/-5 мм. (вентилируемый фасад). Влаго-ветрозащитная мембрана- Ондутис А100.
Внутренняя отделка стен, перегородок Евровагонка камерной сушки, сорт АВ, толщиной 12,5 мм. по строганой рейке 20х40+/-5 мм. либо ГКЛ 12,5 мм.
Отделка потолка Евровагонка камерной сушки, сорт АВ толщиной, 12,5 мм. по строганой рейке 20х40+/-5 мм. либо ГКЛ 12,5 мм.
Пол чистовой Шпунтованная доска камерной сушки толщиной 35-36 мм. сорт АВ. по строганой рейке 20х40+/-5 мм. либо шпунтованная ДСП 16 мм. по разряженной обрешётке из строганой доски камерной сушки 20х95+/-5 мм.
Утепление (пол, потолок) Минеральная вата Knauf 150/200 мм. согласно выбранной толщине утепления.
Утепление стен Плитный утеплитель Rockwool, толщиной 150/200 мм. согласно выбранной толщине утепления.
Звукоизоляция перегородок Плитный утеплитель Rockwool, толщиной 100 мм.
Пароизоляция (стены, перегородки, пол, потолок) Плёнка Ондутис R70. Дополнительная герметизация нахлёстов/примыканий пароизоляционной плёнки клейкой лентой Delta.
Окна Двухкамерные стеклопакеты ПВХ белого цвета, профиль 60 мм. В комплекте: отливы, подоконники, москитные сетки.
Двери Входная- металлическая, утеплённая (Россия). Межкомнатные- филёнчатые.
Наличники на окна и двери Наличник деревянный, строганый, камерной сушки 70-90 мм. с двух сторон.
Лестница (при наличии второго этажа) Деревянная, одно или двухмаршевая. Перила- заводские резные, балясины- заводские точеные, устанавливаются стартовые точёные столбы. Ступени 40х200 мм. Тетива лестницы- 90х140 мм.
Крыша Двускатная, ломаная или вальмовая в соответствии с проектом.
Стропильная система Выполнена из строганой доски камерной сушки 45х145/45х195+/-5 мм. Шаг установки стропил 590 мм.
Обрешётка Выполняется из строганой доски камерной сушки толщиной 20х95+/-5 мм. Шаг крепления обрешетки 350 мм. Контробрешётка выполняется из строганого бруска камерной сушки 45х45+/-5 мм. Крепится по стропилам (вентиляционный зазор).
Подкровельная мембрана Ондутис А100
Кровельное покрытие (на выбор) Металлочерепица 0,45 мм. Цвет на выбор.
Фронтоны (при наличии) Каркас из строганой доски камерной сушки 45х145/45х195+/-5 мм. Обшиваются имитацией бруса камерной сушки, сорт АВ, толщиной 17 мм. Монтаж через строганый брусок камерной сушки 45х45+/-5 мм. (вентилируемый фасад). Влаго-ветрозащитная мембрана- Ондутис А100. Монтаж вентиляционных решёток.
Свесы крыши Ширина 400 мм. Подшиваются вагонкой камерной сушки, сорт АВ.
Терраса/балкон (при наличии) Устанавливаются опорные столбы из строганного бруса камерной сушки 140х140 мм.
Отделка потолка террасы/балкона Евровагонка камерной сушки толщиной 12,5 мм. сорт АВ.
Пол террасы/балкона Шпунтованная доска камерной сушки толщиной 35-36 мм. сорт АВ.
Ограждение террасы/балкона Перила- строганая доска. Балясины- точеные, фигурные. Либо ограждение в скандинавском стиле. Устанавливаются ступени у входа.
Допуск на геометрические параметры Составляет +/- 50 мм по длине с каждой стороны.
Допускается стыковка имитации бруса, вагонки и половой доски По всему периметру стен дома (если ширина и длина дома более 6,0 метров). Вагонки и доски пола в каждой отдельной комнате.
Допуски по имитации бруса, вагонке, доске +/- 5 мм.
В стоимость включена Доставка комплекта материала в радиусе 500 км. от г. Пестова Новгородской области и сборка дома на вашем участке.
Гарантия 5 лет.
Бытовка строительная 2,0х3,0 м. каркасно-щитовая. Стоимость 23000 руб. Остаётся на участке Заказчика.
Туалет 1,0х1,0 м. каркасно-щитовой. Стоимость 12000 руб. Остаётся на участке Заказчика.
Генератор Стоимость аренды на весь срок строительства 15000 руб. ГСМ за счёт Заказчика.

Сооружение дома может выполняться в 2-х видах: под усадку, когда сруб будет отстаиваться на протяжении некоторого времени и сразу под ключ.

В период холодов эффективнее строить в холодную погоду, чтобы каркас не промок, в летний период - не под дождем.

Наиболее подходящими для дачи или сада считают домики на винтовых сваях, у нас вы увидите одноэтажные и полуторатажные варианты.

В том случае если дом строится для ПМЖ (постоянного проживания), рекомендуем теплые дома на ленточных и плитных фундаментах.

Существует два варианта толщины утепления: 200 мм и 150 мм. Каркасные дома с толщиной утеплителя 200 миллиметров получаются теплее, но стоят дороже.

Дополнительные услуги


Каркасный дом маленькой террасой, согласно проекту 18 полутораэтажный с теплоизоляционной двускатной строительной конструкцией крыши, обращает на себя повышенное внимание экологической чистотой, благодаря использованию стружчатых плит, базальтовой и минеральной ваты, а это предоставляет первоклассную термоизоляцию, идеальный микроклимат в помещении. Нормы помещения составляют 6х7,5 м., суммарная жилплощадь - 58.82 кв.м.. Наша организация в кратчайшие сроки создаст для вас дом из каркаса по индивидуальному или типовому плану в Новороссийске в необходимое вам время года и на выбранном вами виде грунта.

Популярные проекты


Дома из бруса 4х5 Дома из бруса 8х9 Каркасные дома 8х8
хит продаж
Тип:
Общая площадь: 2
3997760
от 3807400
хит продаж
Тип:
Общая площадь: 2
2292980
от 2183800
хит продаж
Тип: с маленькой террасой
Общая площадь: 2
2499620
от 2380600
Дома из бруса

Заказать или задать вопрос



Заказать или задать вопрос

Заказать звонок