Дома под ключ в Новороссийске
Отзывы из Яндекс Карт
4.9
104 отзывов
Дополнительные услуги 88%
2 154 оценок
Комплектации 89%
1 535 оценок
Планировки 90%
2 484 оценок
Проекты 93%
2 231 оценок
С
Ждана Фёдорова10.03.2025 г.
Я ценю в работе качество и пунктуальность, и ваша компания продемонстрировала и то, и другое в полной мере. Все этапы строительства были завершены точно в срок, а финальный результат превзошел все мои ожидания. Очень рада, что выбрала именно вас.
Отзывы из Google Карт
4.8
63 отзывов
Дополнительные услуги 88%
2 154 оценок
Комплектации 89%
1 535 оценок
Планировки 90%
2 484 оценок
Проекты 93%
2 231 оценок
С
Малика Измайлова05.02.2026 г.
Дачный дом 5х7 с мансардой и балконом — хотела недорого и красиво. «БрусДома» предложили эконом вариант с отделкой под вагонку. Карниз с южной стороны повело через год, но это из-за солнца, наверное, сами виноваты что не пропитали маслом.
С
Сева Злобин06.04.2025 г.
Я поражен скоростью строительства и безупречным качеством моей новой бани, которая была возведена всего за месяц, но при этом выглядит как настоящий шедевр деревянного зодчества с идеально подогнанными венцами и аккуратными углами.
Отзывы из 2гис
4.9
31 отзывов
Дополнительные услуги 88%
2 154 оценок
Комплектации 89%
1 535 оценок
Планировки 90%
2 484 оценок
Проекты 93%
2 231 оценок
С
Федор Головин11.05.2026 г.
Неделю назад принял двухэтажный дом 10х12 с двумя гаражами и котельной, пока живу — полы скрипят в одном месте, вызвал бригаду, обещали приехать на следующей неделе.
С
Всеволод Светличный03.04.2026 г.
Соседи по даче спрашивали контакты — уже двоим порекомендовал. Оба потом благодарили, у них тоже опыт удачный.
С
Валерий27.03.2026 г.
Мне понравилось, что сразу сказали про срок усадки и не советовали сразу делать чистовую отделку. Говорят, многие компании этого не упоминают, чтобы быстрее сдать объект. Переждали год, как они и рекомендовали, теперь всё идеально ровно.
С
Аглая Блохина04.01.2026 г.
Баня 4х5 с верандой и мансардой — это что-то! Я просила сделать лестницу на второй этаж как на картинке, сделали точь-в-точь. Один косяк — в предбаннике забыли розетку провести, но электрик приехал в выходной и всё доделал.
С
Ванда01.06.2025 г.
Огромное спасибо за оперативность и надёжность! Нам нужно было построить баню в сжатые сроки до начала зимы, и ваша компания справилась блестяще! При этом никакой спешки или небрежности — только качественная работа и прекрасный результат. Баня из бруса получилась тёплой, уютной и очень красивой. Мы абсолютно счастливы!


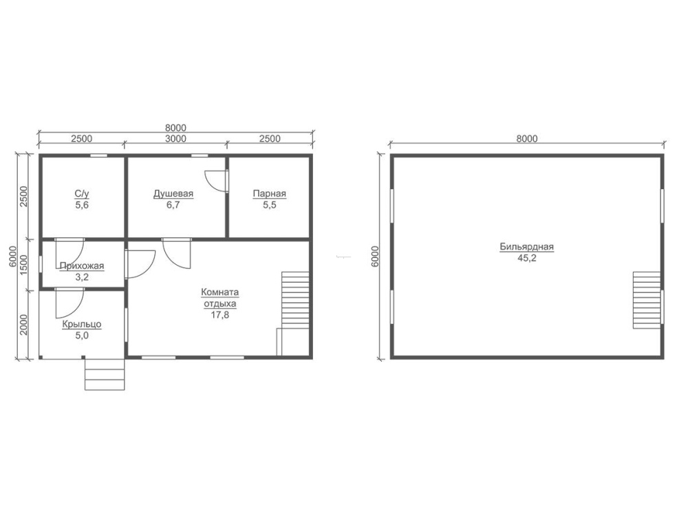
Проект №2 Каркасная баня 6х8

каркас из строганой доски
Создайте свой план для этого проекта
и отправьте его нам на расчет в один клик.
Каркасный дом (150 мм) 6х8 Толщина утепления 150 мм 2730600 Заказать
Каркасный дом (200 мм) 6х8 Толщина утепления 200 мм 2860600 Заказать

Доставка включена в стоимость дома!

Чтобы подстроить под себя готовые проекты и получить свою индивидуальную планировку, пользуйтесь планировщиком.

С помощью планировщика вы можете сделать эскизы, схемы, чертежи, планы уникальной бани с мансардой, эркером, с одной или двумя спальнями. Вы получите идеальный проект, который стопроцентно отвечает вашим запросам.

Работая над проектом бани, вы сможете подобрать определенный вид кровли. Крышу можно сделать четырехскатной, двускатной и вальмовой. Двухскатную крышу считают наиболее востребованной у малометражных построек.

Востребованные размеры бань и бани на сегодняшний день: мини - до 36 м2 (как правило, одноэтажные бани); компактные - от 36 до 70 м2 (обычно 2-этажные); большие - начиная от 70 квадратов и свыше.


Наши работы

Перейти в галерею


Комплектация

Площадь застройки: 48 м2
Длина: 6 м
Ширина: 8 м
Общая площадь: 89 м2
Исполнение Под ключ (с отделкой)
Фундамент Свайно-винтовой или ж/б сваи (рассчитываются отдельно).
Гидроизоляция фундамента Рубероид в два слоя.
Основание (обвязка) Из обрезного бруса 150х150 мм. 150х200 мм. согласно выбранной толщине утепления. Торцевая строганая доска камерной сушки 45х145/45х195+/-5 мм. Обработка антисептиком.
Цокольное перекрытие Строганая доска камерной сушки 45х145/45х195+/-5 мм. с шагом 590 мм. Обработка антисептиком.
Пол черновой Обрезная доска камерной сушки 20х100 мм.
Влаго-ветрозащита чернового пола Мембрана Ондутис А100.
Внешние стены Стойки каркаса из строганой доски камерной сушки 45х145/45х195+/-5 мм. с шагом 590 мм. Верхняя двойная и нижняя обвязки из строганой доски камерной сушки 45х145/45х195+/-5 мм. Разгрузочный ригель из строганой доски 45х145+/-5 мм. Укосины из строганой доски 20х95 мм.
Перегородки Стойки каркаса из строганой доски камерной сушки 45х95+/-5 мм. с шагом 590 мм. Верхняя двойная и нижняя обвязки из строганой доски 45х95+/-5 мм. Разгрузочный ригель из строганой доски камерной сушки 45х145+/-5 мм. Укосины из строганой доски камерной сушки 20х95 мм.
Сборка каркаса На гвозди.
Высота от пола до потолка Баня одноэтажная: 2,5 м. Баня с мансардой: 1-ый этаж- 2,5 м.
2-ой этаж (мансарда)- 2,3 м.
Баня в полтора и два этажа:
1-ый этаж 2,5 м.
2-ой этаж 2,4 м. в полутораэтажной бане.
2,5 м. в двухэтажной бане.
Внешняя отделка стен Имитация бруса камерной сушки, сорт АВ, толщиной 17 мм. Монтаж через строганый брусок камерной сушки 45х45+/-5 мм. (вентилируемый фасад). Влаго-ветрозащитная мембрана- Ондутис А100.
Внутренняя отделка стен, перегородок Евровагонка камерной сушки, сорт АВ, толщиной 12,5 мм. по строганой рейке 20х40+/-5 мм. либо ГКЛ 12,5 мм.
Отделка потолка Евровагонка камерной сушки, сорт АВ, толщиной 12,5 мм. по строганой рейке 20х40+/-5 мм. либо ГКЛ 12,5 мм.
Пол чистовой Шпунтованная доска камерной сушки толщиной 35-36 мм. сорт АВ. по строганой рейке 20х40+/-5 мм. либо шпунтованная ДСП 16 мм. по разряженной обрешётке из строганой доски камерной сушки 20х95+/-5 мм.
Утепление (пол, потолок) Минеральная вата Knauf 150/200 мм. согласно выбранной толщине утепления.
Утепление стен Плитный утеплитель Rockwool, толщиной 150/200 мм. согласно выбранной толщине утепления.
Звукоизоляция перегородок Плитный утеплитель Rockwool, толщиной 100 мм.
Пароизоляция (стены, перегородки, пол, потолок) Плёнка Ондутис R70. Дополнительная герметизация нахлёстов/примыканий пароизоляционной плёнки клейкой лентой Delta.
Отделка парной Отделка осиновой вагонкой камерной сушки, сорт АВ по фольге, через строганую рейку 20х40+/-5 мм. (вентиляционный зазор). Установка пологов из осины.
Окна Двухкамерные стеклопакеты ПВХ белого цвета, профиль 60 мм. В комплекте: отливы, подоконники, москитные сетки.
Двери Входная- металлическая, утеплённая (Россия). Межкомнатные- филёнчатые. В душевую/парную- клиновые (банные).
Наличники на окна и двери Наличник деревянный, строганый, камерной сушки 70-90 мм. с двух сторон.
Лестница (при наличии второго этажа) Деревянная, одно или двухмаршевая. Перила- заводские резные, балясины- заводские точеные, устанавливаются стартовые точёные столбы. Ступени 40х200 мм. Тетива лестницы- 90х140 мм.
Крыша Двускатная, ломаная или вальмовая в соответствии с проектом.
Стропильная система Выполнена из строганой доски камерной сушки 45х145/45х195+/-5 мм. Шаг установки стропил 590 мм.
Обрешётка Выполняется из строганой доски камерной сушки толщиной 20х95+/-5 мм. Шаг крепления обрешетки 350 мм. Контробрешётка выполняется из строганого бруска камерной сушки 45х45+/-5 мм. Крепится по стропилам (вентиляционный зазор).
Подкровельная мембрана Ондутис А100
Кровельное покрытие (на выбор) Металлочерепица 0,45 мм. Цвет на выбор.
Фронтоны (при наличии) Каркас из строганой доски камерной сушки 45х145/45х195+/-5 мм. Обшиваются имитацией бруса камерной сушки, сорт АВ, толщиной 17 мм. Монтаж через строганый брусок камерной сушки 45х45+/-5 мм. (вентилируемый фасад). Влаго-ветрозащитная мембрана- Ондутис А100. Монтаж вентиляционных решёток.
Свесы крыши Ширина 400 мм. Подшиваются вагонкой камерной сушки, сорт АВ.
Терраса/балкон (при наличии) Устанавливаются опорные столбы из строганного бруса камерной сушки 140х140 мм.
Отделка потолка террасы/балкона Евровагонка камерной сушки толщиной 12,5 мм. сорт АВ.
Пол террасы/балкона Шпунтованная доска камерной сушки толщиной 35-36 мм. сорт АВ.
Ограждение террасы/балкона Перила- строганая доска. Балясины- точеные, фигурные. Либо ограждение в скандинавском стиле. Устанавливаются ступени у входа.
Допуск на геометрические параметры Составляет +/- 50 мм по длине с каждой стороны.
Допускается стыковка имитации бруса, вагонки и половой доски По всему периметру стен бани (если ширина и длина бани более 6,0 метров). Вагонки и доски пола в каждой отдельной комнате.
Допуски по имитации бруса, вагонке, доске +/- 5 мм.
В стоимость включена Доставка комплекта материала в радиусе 500 км. от г. Пестова Новгородской области и сборка дома на вашем участке.
Гарантия 5 лет.
Печь По запросу.
Бытовка строительная 2,0х3,0 м. каркасно-щитовая. Стоимость 23000 руб. Остаётся на участке Заказчика.
Туалет 1,0х1,0 м. каркасно-щитовой. Стоимость 12000 руб. Остаётся на участке Заказчика.
Генератор Стоимость аренды на весь срок строительства 15000 руб. ГСМ за счёт Заказчика.

Постройка бани производится в нескольких видах: под ключ и под усадку, когда сруб отстаивается в течение некоторого времени.

Зимой эксперты советуют строить бани в мороз, чтобы каркас не успел промокнуть, в летний период - не в дождливую.

Оптимальными для сада или дачи считают бани на винтовых сваях, на нашем сайте имеются одноэтажные и полуторатажные варианты бань.

Мы предлагаем 2 размера утепления: 150 мм и 200 мм. Каркасные бани с толщиной стен 150 мм получаются дешевле, но менее энергоэффективными.

Дополнительные услуги



Популярные проекты


Одноэтажные дома из бруса Дома из бруса 8х8 Каркасные дома 4х10
Дома из бруса

Заказать или задать вопрос



Заказать или задать вопрос

Заказать звонок