Дома под ключ в Новороссийске
Отзывы из Яндекс Карт
4.9
99 отзывов
Дополнительные услуги 88%
2 154 оценок
Комплектации 89%
1 535 оценок
Планировки 90%
2 484 оценок
Проекты 93%
2 231 оценок
С
Захар Жилин31.03.2025 г.
Хочу отметить высокую культуру общения и глубокую экспертизу сотрудников компании, которые помогли мне определиться с проектом бани и организовали ее строительство на самом высоком уровне.
Отзывы из Google Карт
4.8
60 отзывов
Дополнительные услуги 88%
2 154 оценок
Комплектации 89%
1 535 оценок
Планировки 90%
2 484 оценок
Проекты 93%
2 231 оценок
С
Ольга Хомякова01.05.2025 г.
Изначально боялась строить из бруса, но консультанты развеяли все страхи и подробно объяснили про вентиляцию и защиту древесины — теперь живу в экологичном и дышащем доме.
Отзывы из 2гис
4.9
31 отзывов
Дополнительные услуги 88%
2 154 оценок
Комплектации 89%
1 535 оценок
Планировки 90%
2 484 оценок
Проекты 93%
2 231 оценок
С
Варвара19.08.2025 г.
Бригада строителей работала слаженно и очень ответственно — видно, что люди знают свое дело и гордятся результатом своего труда.


Проект №5 Каркасная баня 6х6 1

каркас из строганой доски
Создайте свой план для этого проекта
и отправьте его нам на расчет в один клик.
Каркасный дом (150 мм) 6х6 Толщина утепления 150 мм 2153800 Заказать
Каркасный дом (200 мм) 6х6 Толщина утепления 200 мм 2283800 Заказать

Доставка включена в стоимость дома!

Чтобы подстроить под себя готовые проекты и получить свою индивидуальную планировку, пользуйтесь планировщиком.

С помощью планировщика вы можете сделать эскизы, схемы, чертежи, планы уникальной бани с мансардой, эркером, с одной или двумя спальнями. Вы получите идеальный проект, который стопроцентно отвечает вашим запросам.

Работая над проектом бани, вы сможете подобрать определенный вид кровли. Крышу можно сделать четырехскатной, двускатной и вальмовой. Двухскатную крышу считают наиболее востребованной у малометражных построек.

Востребованные размеры бань и бани на сегодняшний день: мини - до 36 м2 (как правило, одноэтажные бани); компактные - от 36 до 70 м2 (обычно 2-этажные); большие - начиная от 70 квадратов и свыше.


Наши работы

Перейти в галерею


Комплектация

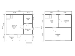
Площадь застройки: 36 м2
Длина: 6 м
Ширина: 6 м
Общая площадь: 66 м2
Исполнение Под ключ (с отделкой)
Фундамент Свайно-винтовой или ж/б сваи (рассчитываются отдельно).
Гидроизоляция фундамента Рубероид в два слоя.
Основание (обвязка) Из обрезного бруса 150х150 мм. 150х200 мм. согласно выбранной толщине утепления. Торцевая строганая доска камерной сушки 45х145/45х195+/-5 мм. Обработка антисептиком.
Цокольное перекрытие Строганая доска камерной сушки 45х145/45х195+/-5 мм. с шагом 590 мм. Обработка антисептиком.
Пол черновой Обрезная доска камерной сушки 20х100 мм.
Влаго-ветрозащита чернового пола Мембрана Ондутис А100.
Внешние стены Стойки каркаса из строганой доски камерной сушки 45х145/45х195+/-5 мм. с шагом 590 мм. Верхняя двойная и нижняя обвязки из строганой доски камерной сушки 45х145/45х195+/-5 мм. Разгрузочный ригель из строганой доски 45х145+/-5 мм. Укосины из строганой доски 20х95 мм.
Перегородки Стойки каркаса из строганой доски камерной сушки 45х95+/-5 мм. с шагом 590 мм. Верхняя двойная и нижняя обвязки из строганой доски 45х95+/-5 мм. Разгрузочный ригель из строганой доски камерной сушки 45х145+/-5 мм. Укосины из строганой доски камерной сушки 20х95 мм.
Сборка каркаса На гвозди.
Высота от пола до потолка Баня одноэтажная: 2,5 м. Баня с мансардой: 1-ый этаж- 2,5 м.
2-ой этаж (мансарда)- 2,3 м.
Баня в полтора и два этажа:
1-ый этаж 2,5 м.
2-ой этаж 2,4 м. в полутораэтажной бане.
2,5 м. в двухэтажной бане.
Внешняя отделка стен Имитация бруса камерной сушки, сорт АВ, толщиной 17 мм. Монтаж через строганый брусок камерной сушки 45х45+/-5 мм. (вентилируемый фасад). Влаго-ветрозащитная мембрана- Ондутис А100.
Внутренняя отделка стен, перегородок Евровагонка камерной сушки, сорт АВ, толщиной 12,5 мм. по строганой рейке 20х40+/-5 мм. либо ГКЛ 12,5 мм.
Отделка потолка Евровагонка камерной сушки, сорт АВ, толщиной 12,5 мм. по строганой рейке 20х40+/-5 мм. либо ГКЛ 12,5 мм.
Пол чистовой Шпунтованная доска камерной сушки толщиной 35-36 мм. сорт АВ. по строганой рейке 20х40+/-5 мм. либо шпунтованная ДСП 16 мм. по разряженной обрешётке из строганой доски камерной сушки 20х95+/-5 мм.
Утепление (пол, потолок) Минеральная вата Knauf 150/200 мм. согласно выбранной толщине утепления.
Утепление стен Плитный утеплитель Rockwool, толщиной 150/200 мм. согласно выбранной толщине утепления.
Звукоизоляция перегородок Плитный утеплитель Rockwool, толщиной 100 мм.
Пароизоляция (стены, перегородки, пол, потолок) Плёнка Ондутис R70. Дополнительная герметизация нахлёстов/примыканий пароизоляционной плёнки клейкой лентой Delta.
Отделка парной Отделка осиновой вагонкой камерной сушки, сорт АВ по фольге, через строганую рейку 20х40+/-5 мм. (вентиляционный зазор). Установка пологов из осины.
Окна Двухкамерные стеклопакеты ПВХ белого цвета, профиль 60 мм. В комплекте: отливы, подоконники, москитные сетки.
Двери Входная- металлическая, утеплённая (Россия). Межкомнатные- филёнчатые. В душевую/парную- клиновые (банные).
Наличники на окна и двери Наличник деревянный, строганый, камерной сушки 70-90 мм. с двух сторон.
Лестница (при наличии второго этажа) Деревянная, одно или двухмаршевая. Перила- заводские резные, балясины- заводские точеные, устанавливаются стартовые точёные столбы. Ступени 40х200 мм. Тетива лестницы- 90х140 мм.
Крыша Двускатная, ломаная или вальмовая в соответствии с проектом.
Стропильная система Выполнена из строганой доски камерной сушки 45х145/45х195+/-5 мм. Шаг установки стропил 590 мм.
Обрешётка Выполняется из строганой доски камерной сушки толщиной 20х95+/-5 мм. Шаг крепления обрешетки 350 мм. Контробрешётка выполняется из строганого бруска камерной сушки 45х45+/-5 мм. Крепится по стропилам (вентиляционный зазор).
Подкровельная мембрана Ондутис А100
Кровельное покрытие (на выбор) Металлочерепица 0,45 мм. Цвет на выбор.
Фронтоны (при наличии) Каркас из строганой доски камерной сушки 45х145/45х195+/-5 мм. Обшиваются имитацией бруса камерной сушки, сорт АВ, толщиной 17 мм. Монтаж через строганый брусок камерной сушки 45х45+/-5 мм. (вентилируемый фасад). Влаго-ветрозащитная мембрана- Ондутис А100. Монтаж вентиляционных решёток.
Свесы крыши Ширина 400 мм. Подшиваются вагонкой камерной сушки, сорт АВ.
Терраса/балкон (при наличии) Устанавливаются опорные столбы из строганного бруса камерной сушки 140х140 мм.
Отделка потолка террасы/балкона Евровагонка камерной сушки толщиной 12,5 мм. сорт АВ.
Пол террасы/балкона Шпунтованная доска камерной сушки толщиной 35-36 мм. сорт АВ.
Ограждение террасы/балкона Перила- строганая доска. Балясины- точеные, фигурные. Либо ограждение в скандинавском стиле. Устанавливаются ступени у входа.
Допуск на геометрические параметры Составляет +/- 50 мм по длине с каждой стороны.
Допускается стыковка имитации бруса, вагонки и половой доски По всему периметру стен бани (если ширина и длина бани более 6,0 метров). Вагонки и доски пола в каждой отдельной комнате.
Допуски по имитации бруса, вагонке, доске +/- 5 мм.
В стоимость включена Доставка комплекта материала в радиусе 500 км. от г. Пестова Новгородской области и сборка дома на вашем участке.
Гарантия 5 лет.
Печь По запросу.
Бытовка строительная 2,0х3,0 м. каркасно-щитовая. Стоимость 23000 руб. Остаётся на участке Заказчика.
Туалет 1,0х1,0 м. каркасно-щитовой. Стоимость 12000 руб. Остаётся на участке Заказчика.
Генератор Стоимость аренды на весь срок строительства 15000 руб. ГСМ за счёт Заказчика.

Постройка бани производится в нескольких видах: под ключ и под усадку, когда сруб отстаивается в течение некоторого времени.

Зимой эксперты советуют строить бани в мороз, чтобы каркас не успел промокнуть, в летний период - не в дождливую.

Оптимальными для сада или дачи считают бани на винтовых сваях, на нашем сайте имеются одноэтажные и полуторатажные варианты бань.

Мы предлагаем 2 размера утепления: 150 мм и 200 мм. Каркасные бани с толщиной стен 150 мм получаются дешевле, но менее энергоэффективными.

Дополнительные услуги



Популярные проекты


Одноэтажные дома из бруса Каркасные дома 8х8 Бани из бруса с верандой
Дома из бруса

Заказать или задать вопрос



Заказать или задать вопрос

Заказать звонок