Дома под ключ в Новороссийске
Отзывы из Яндекс Карт
4.9
101 отзывов
Дополнительные услуги 88%
2 154 оценок
Комплектации 89%
1 535 оценок
Планировки 90%
2 484 оценок
Проекты 93%
2 231 оценок
С
Берта Т.04.05.2026 г.
Ой, забыла написать отзыв про нашу баню 4х4 с печкой-каменкой. БрусДома собрали за десять дней, даже мусор вывезли. Но парольную дверь поставили не с тем замком, который я просила. Позвонила — приехали, поменяли на следующий день. Теперь моя радость.
С
Белла Т.15.03.2026 г.
Баня 4х5 с печкой и маленьким навесом для дров. Навес сделали хлипкий, первый же ветер сломал. Вызвала прораба, пообещали переделать, уже месяц жду. А сама баня хорошая, пар отличный.
С
Даня Дьяконов05.02.2026 г.
Дом 6х6 с террасой и печкой для бабушки в деревне. Не дорого, сердито, собрали за две недели. Бабуля довольна, не дует, окна пластиковые поставили. Только крыльцо не успели сделать вовремя, пришлось ждать ещё три дня.
С
Мила Крылова09.05.2025 г.
Отдельное спасибо хочу сказать за потрясающий аромат дерева, который всегда царит в нашем новом доме из бруса. Это непередаваемое ощущение уюта и единения с природой. Строители подобрали материал безупречного качества, без сучков и с красивой текстурой. Кажется, будто живу в сказке.
Отзывы из Google Карт
4.8
61 отзывов
Дополнительные услуги 88%
2 154 оценок
Комплектации 89%
1 535 оценок
Планировки 90%
2 484 оценок
Проекты 93%
2 231 оценок
С
Ира Т.20.01.2026 г.
Заказывала дом для постоянного проживания 10х12 с гаражом и верандой. Ребята работали аккуратно, мусор вывозили каждый день, но крыльцо сделали не по уровню — через пару дней приехали переделали, извинились.
С
Надя Панкратова28.03.2025 г.
Процессом строительства руководил грамотный прораб, который держал нас в курсе всех дел. Это очень ценно, когда ты понимаешь, что происходит на каждом этапе. Баню построили быстро и с душой, теперь паримся каждые выходные.
Отзывы из 2гис
4.9
31 отзывов
Дополнительные услуги 88%
2 154 оценок
Комплектации 89%
1 535 оценок
Планировки 90%
2 484 оценок
Проекты 93%
2 231 оценок
С
Эвелина Макарова27.04.2026 г.
Дом 10х12 с мансардой и эркером выбрала из каталога, немного изменила планировку кухни. Менеджер всё принял, но когда приехали ребята, оказалось, что старые чертежи забыли поменять. В итоге полдня разбирались, переделали под мой вариант. Нервов много, а дом хорош.
С
Амалия Дорофеева22.08.2025 г.
Искренняя благодарность всей команде "Брус дома" за терпение, внимание к деталям и умение слышать клиента — вы превратили сложный процесс строительства в удовольствие.


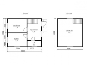
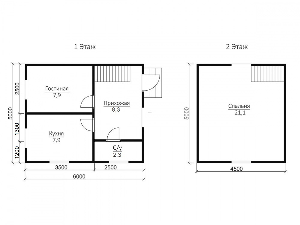
Проект №6 Дом с мансардой 6х5

брус камерной сушки
Создайте свой план для этого проекта
и отправьте его нам на расчет в один клик.
Под ключ (с отделкой) 6х5 Профилированный 140х140 мм 1703800 Заказать
Под ключ (с отделкой) 6х5 Профилированный 190х140 мм 1843800 Заказать
Под усадку (без отделки) 6х5 Cруб дома 140х140 мм 1243800 Заказать
Под усадку (без отделки) 6х5 Cруб дома 190х140 мм 1363800 Заказать

Доставка включена в стоимость дома!



Комплектация

Площадь застройки: м2
Длина: 6 м
Ширина: 5 м
Общая площадь: 48.14 м2
Под ключ (с отделкой) Под усадку (без отделки)
Фундамент Свайно-винтовой или ж/б сваи (рассчитываются отдельно).
Гидроизоляция фундамента Рубероид в два слоя.
Основание (обвязка) Из обрезного бруса (100х150 мм. 150х150 мм. 150х200 мм. согласно выбранному сечению бруса). Обработка антисептиком.
Количество рядов основания 2 2
Цокольное перекрытие Обрезной брус камерной сушки 100х150/50х200 мм. с шагом 600 мм. Обработка антисептиком. Обрезной брус естественной влажности 100х150/50х200 мм. с шагом 600 мм. Обработка антисептиком.
Пол черновой Обрезная доска камерной сушки 20х100 мм. Обрезная доска естественной влажности 20х100 мм.
Внешние стены Профилированный брус камерной сушки, сечением 90х140/140х140/190х140 мм. по выбранной комплектации. Два вида профиля: 
1. С двух сторон, прямой со снятой фаской. 2. Снаружи под «блок- хаус», внутри прямой.
Высота сруба: Сруб одноэтажный- 18 венцов
Сруб с мансардой- 18 венцов
Сруб в 1,5 этажа- 18 венцов, далее каркас с внешней отделкой имитацией бруса.
Сруб в 2 этажа- 37 венцов
Профилированный брус естественной влажности, сечением 90х140/140х140/190х140 мм. по выбранной комплектации. Два вида профиля: 
1. С двух сторон, прямой со снятой фаской. 2. Снаружи под «блок- хаус», внутри прямой.
Высота сруба: Сруб одноэтажный- 18 венцов
Сруб с мансардой- 18 венцов
Сруб в 1,5 этажа- 18 венцов, далее каркас с внешней отделкой имитацией бруса.
Сруб в 2 этажа- 37 венцов
Межвенцовый утеплитель Джут (льноджутовое полотно). Джут (льноджутовое полотно).
Перегородки 1-го этажа Профилированный брус камерной сушки, сечением 90х140 мм. Профилированный брус естественной влажности, сечением 90х140 мм.
Перегородки 2-го этажа Каркасные: доска камерной сушки 40х100 мм, обшитые евровагонкой хвойных пород, камерной сушки, толщиной 12,5 мм. сорт «АВ» (дома с мансардой и в 1,5 этажа). Брусовые: профилированный брус камерной сушки, сечением 90х140 мм. (дома двухэтажные). Каркасные: доска естественной влажности 40х100 мм. (дома с мансардой и в 1,5 этажа). Брусовые: профилированный брус естественной влажности, сечением 90х140 мм. (дома двухэтажные).
Сборка сруба Берёзовый нагель. Берёзовый нагель.
Соединение углов сруба «Тёплый угол» (коренной шип). «Тёплый угол» (коренной шип).
Высота от пола до потолка Сруб одноэтажный: 2,4 м. (18 венцов) Сруб с мансардой: 1-ый этаж- 2,4 м. (18 венцов)
2-ой этаж (мансарда)- 2,3 м.
Сруб в полтора и два этажа:
1-ый этаж 2,4 м ±4 см. (18 венцов)
2-ой этаж 2,4 м ±4 см. каркасные аттиковые стены (боковые) высотой 1,5 м. в полутораэтажном доме
2,4 м ±4 см (поднят брусом на 18 венцов) в двухэтажном доме.
Сруб одноэтажный: 2,5 м. (18 венцов) Сруб с мансардой: 1-ый этаж- 2,5 м. (18 венцов)
2-ой этаж (мансарда)- 2,4 м.
Сруб в полтора и два этажа:
1-ый этаж 2,5 м ±4 см. (18 венцов)
2-ой этаж 2,5 м ±4 см. каркасные аттиковые стены (боковые) высотой 1,5 м. в полутораэтажном доме
2,5 м ±4 см (поднят брусом на 18 венцов) в двухэтажном доме.
Утепление (пол, потолок, мансарда) Минеральная вата Knauf 150 мм. Отсутствует.
Пароизоляция (пол, потолок, мансарда) Ондутис R70. Отсутствует.
Пол чистовой Шпунтованная доска камерной сушки толщиной 36 мм. сорт АВ. по рейке 20х40 мм. либо шпунтованная ДСП 16 мм. по разряженной обрешётке из обрезной доски камерной сушки 20х100 мм. Отсутствует.
Потолки Евровагонка камерной сушки толщиной 12,5 мм. сорт АВ. Отсутствует.
Окна Деревянные, двойного остекления. Отсутствуют.
Двери Входная- металлическая, утеплённая (Россия). Межкомнатные- филёнчатые. Отсутствуют.
Наличники на окна и двери Наличник деревянный, строганый, камерной сушки 70-90 мм. Отсутствует.
Шиповка оконных и дверных проёмов (ройки) Да. Отсутствует.
Лестница (при наличии второго этажа) Деревянная, одно или двухмаршевая. Перила- заводские резные, балясины- заводские точеные, устанавливаются стартовые точёные столбы. Ступени 40х200 мм. Тетива лестницы- 90х140 мм. Отсутствует.
Крыша Двускатная, ломаная или вальмовая в соответствии с проектом. Двускатная, ломаная или вальмовая в соответствии с проектом.
Стропильная система Выполнена из обрезной доски камерной сушки 40х150 мм. Шаг установки стропильных ног 600 мм. Выполнена из обрезной доски естественной влажности 40х150 мм. Шаг установки стропильных ног 600 мм.
Обрешётка Выполняется из обрезной доски камерной сушки толщиной 20-22 мм. Шаг крепления обрешетки 300 мм. Контробрешётка выполняется из бруска камерной сушки 40х50 мм. Крепится по стропильным ногам (вентиляционный зазор). Выполняется из обрезной доски естественной влажности толщиной 20-22 мм. Шаг крепления обрешетки 300 мм. Контробрешётка выполняется из бруска естественной влажности 40х50 мм. Крепится по стропильным ногам (вентиляционный зазор).
Подкровельная мембрана Ондутис А100 Ондутис А100
Кровельное покрытие (на выбор) Ондулин, Черепица Ондулин. Ондулин, Черепица Ондулин.
Фронтоны (при наличии) Каркас из обрезной доски камерной сушки 40х150 мм. Обшиваются вагонкой камерной сушки толщиной 16 мм. сорт АВ по контррейке 20х40 мм. (вентиляционный зазор). Влаго-ветрозащита Ондутис А100. Монтаж вентиляционных решёток. Каркас из обрезной доски естественной влажности 40х150 мм. Обшиваются вагонкой камерной сушки толщиной 16 мм. сорт АВ по контррейке 20х40 мм. (вентиляционный зазор). Влаго-ветрозащита Ондутис А100. Монтаж вентиляционных решёток.
Свесы крыши Ширина 400 мм. Подшиваются вагонкой камерной сушки, сорт АВ. Ширина 400 мм. Подшиваются вагонкой камерной сушки, сорт АВ.
Терраса/балкон (при наличии) Устанавливаются опорные столбы из строганного бруса камерной сушки 140х140 мм. с компенсационными болтами под усадку. Устанавливаются опорные столбы из строганного бруса естественной влажности 140х140 мм. с компенсационными болтами под усадку.
Отделка потолка террасы/балкона Евровагонка камерной сушки толщиной 12,5 мм. сорт АВ. Отсутствует.
Пол террасы/балкона Шпунтованная доска камерной сушки толщиной 36 мм. сорт АВ. Отсутствует.
Ограждение террасы/балкона Перила- строганая доска. Балясины- точеные, фигурные. Либо ограждение в скандинавском стиле. Устанавливаются ступени у входа. Отсутствует.
Допуск на геометрические параметры сруба Составляет +/- 50 мм по длине с каждой стороны. Составляет +/- 50 мм по длине с каждой стороны.
Допускается стыковка бруса, вагонки и половой доски По всему периметру стен дома (если ширина и длина дома более 6,0 метров). Вагонки и доски пола в каждой отдельной комнате. По всему периметру стен дома (если ширина и длина дома более 6,0 метров).
Допуски по брусу, доске +/- 5 мм. +/- 5 мм.
В стоимость включена Доставка комплекта материала в радиусе 500 км. от г. Пестова Новгородской области и сборка дома на вашем участке. Доставка комплекта материала в радиусе 500 км. от г. Пестова Новгородской области и сборка дома на вашем участке.
Гарантия 5 лет. 2 года.
Бытовка строительная 2,0х3,0 м. каркасно-щитовая. Стоимость 23000 руб. Остаётся на участке Заказчика. Стоимость 23000 руб. Остаётся на участке Заказчика.
Туалет 1,0х1,0 м. каркасно-щитовой. Стоимость 12000 руб. Остаётся на участке Заказчика. Стоимость 12000 руб. Остаётся на участке Заказчика.
Генератор Стоимость аренды на весь срок строительства 10000 руб. ГСМ за счёт Заказчика. Стоимость аренды на весь срок строительства 10000 руб. ГСМ за счёт Заказчика.

Строительство домов производится в 2-х вариантах: полностью под ключ и под усадку, когда дом будет отстаиваться некоторое время.

Зимой специалисты советуют строить дома из зимнего леса, летом - из сухого бруса (дерева камерной сушки).

Подходящими для сада или дачи являются экономичные дома на винтовых сваях, в нашем онлайн-каталоге присутствуют одноэтажные и полуторатажные дома.

При условии, что дом будет строиться для ПМЖ (постоянного проживания), можем предложить очень теплые и надежные двухэтажные и одноэтажные коттеджи и дома на плитном и ленточном фундаменте.

Существует несколько видов профбруса: 140х140 мм и 190х140 мм. Дома из вертикального бруса строим из бруса 140х190 мм.

Дополнительные услуги


Удобная планировка, экологическая и пожарная защита — это важнейшие преимущества, которыми обладает брусовой дом , выстроенный по проекту 6, полутораэтажный.
Во всех комплектациях присутствует паро- гидроизоляция межэтажных перекрытий и пола, утеплитель минвата от 100 мм, крыша типа двускатная.
Применяются новейшие надежные технологии, монтаж осуществляется на винтовой фундамент. Жилая площадь составляет 48.14 кв.м..
Наша организация качественно и в минимальный срок возведет в Новороссийске брусовой дом любой сложности по типовому или индивидуальному проекту.

Популярные проекты

хит продаж брус камерной сушки
Тип:
Общая площадь: 121.592
2800760
от 2667400
хит продаж брус камерной сушки
Тип:
Общая площадь: 45.72
1505480
от 1433800
хит продаж брус камерной сушки
Тип: с балконом, с маленькой террасой
Общая площадь: 107.32
2947760
от 2807400

Заказать или задать вопрос



Заказать или задать вопрос

Заказать звонок